Расположение розеток и выключателей в помещении…
сегодня: %d %M %h~:~%m
Стоит сказать, что электрическая проводка любого помещения строго индивидуальна. Установка специальных коробок для розеток и выключателей должна проводиться в стене заподлицо и не должны выпирать, иначе будут доставлять много хлопот при установке электроустановок.
На какой высоте от пола крепятся розетки?
В строительных нормативах в настоящее время нет четких правил, которые регламентируют количество и расположение розеток и выключателей в квартире.
В СП 31-110-2003 имеется рекомендации того, что выключатели желательно размещать со стороны дверной ручки на высоте до 100 см, а розетки – в любом месте на таком же расстоянии. Согласно ПУЭ (Правила Устройства Электроустановок) розетки и выключатели должны располагаться дальше, чем в 50 см от газопровода, и дальше, чем в 60 см от ванны, раковины, душевой кабинки.
В последнее время в некоторых статьях можно прочитать о так называемом «евростандарте» установки розеток и выключателей, по которому розетки устанавливаются на высоте 0,3 м от пола, а выключатели — 0,9 м от пола. Реально, данные величины ничем не подтверждены, а такая трактовка пришла к нам с появлением понятия «евроремонт».
Отметим, что по старым советским стандартам у выключатели устанавливались на расстоянии 160 см от пола, а розетки — на расстоянии 0,9 м.
На практике розетки устанавливают на высоте от 20 до 100 см (в зависимости от их типа и частоты использования), а выключатели — не выше 100 см от пола.
Перед тем как устанавливать розетки — нарисуйте схему помещения, на которой обозначьте расстановку мебели, техники, требующую подключения к электричеству или к слаботочным сетям. После чего на схеме отметьте места установки розеток.
Рекомендуется розетки для стационарной техники (компьютер, телевизор и.т.п.) располагать так, чтоб всегда иметь свободный доступ к ним и они были рядом с этими приборами.
Розетки над письменным столом, прикроватными тумбочками и т.п. лучше располагать на высоте 20 см от поверхностей мебели. В зависимости от назначения розеток, устройства могут устанавливаться на других высотах, например, на кухне для удобства использования различных электрических бытовых приборов розетки располагают в одну линию над столешницей, на высоте 200 – 250 мм.
Вся Европа работает по нормам МЭК ( международная энергетическая комиссия.
Практика показала, что выключатели и розетки удобней ставить на высоте 0,9м, потому, что современные столы имеют высоту 0,7-0,8м, то есть не будут перекрываться.
Установку выключателей необходимо планировать таким образом, чтобы устройство не оказалось за закрытой дверью. От проема двери выключатели устанавливают на расстоянии не менее 100 мм.
Пользуясь этими нехитрыми правилами, здравым смыслом и правилами техники безопасности, вы сможете добиться оптимального расположения розеток и выключателей у вас дома.
Помните, что лучше сразу все верно рассчитать и предусмотреть, чем переделывать электропроводку после.
Ничего не найдено для Apple Touch Icon 120X120 Precomposed Png
Выключатели
Правильный подбор расцепителя автоматического выключателя защитит электрооборудование, СБТ и разводку распределительной сети от перегруза
Электрооборудование и безопасность
Теплые полы – это не роскошь, а комфорт. При наличии в семье маленьких детей
Виды точечных светильников, их предназначение для ПВХ потолков и ГКЛ конструкций.
Правильный монтаж с
Электрооборудование и безопасность
Светильники
Точечные светильники – споты улучшают яркость освещения, без возникновения теней. Равномерно распределив их по
Розетки
Выбор розетки и выключателя необходимо проводить с учетом специфики использования помещения, репутации производителя соответствующего
Ничего не найдено для Apple Touch Icon 120X120 Precomposed Png
Выключатели
Правильный подбор расцепителя автоматического выключателя защитит электрооборудование, СБТ и разводку распределительной сети от перегруза
Теплые полы – это не роскошь, а комфорт.
При наличии в семье маленьких детей
Светильники
Виды точечных светильников, их предназначение для ПВХ потолков и ГКЛ конструкций. Правильный монтаж с
Электрооборудование и безопасность
Популярность инфракрасного пола растет за счет его преимуществ над другими вариантами. Благодаря современным технологиям
Светильники
Точечные светильники – споты улучшают яркость освещения, без возникновения теней.
Розетки
Выбор розетки и выключателя необходимо проводить с учетом специфики использования помещения, репутации производителя соответствующего
Ничего не найдено для Apple Touch Icon 120X120 Precomposed Png
Выключатели
Правильный подбор расцепителя автоматического выключателя защитит электрооборудование, СБТ и разводку распределительной сети от перегруза
Электрооборудование и безопасность
Теплые полы – это не роскошь, а комфорт.
При наличии в семье маленьких детей
Светильники
Виды точечных светильников, их предназначение для ПВХ потолков и ГКЛ конструкций. Правильный монтаж с
Электрооборудование и безопасность
Популярность инфракрасного пола растет за счет его преимуществ над другими вариантами. Благодаря современным технологиям
Светильники
Точечные светильники – споты улучшают яркость освещения, без возникновения теней.
Равномерно распределив их по
Розетки
Выбор розетки и выключателя необходимо проводить с учетом специфики использования помещения, репутации производителя соответствующего
Высота установки розеток от пола, расположение выключателей и розеток в квартире
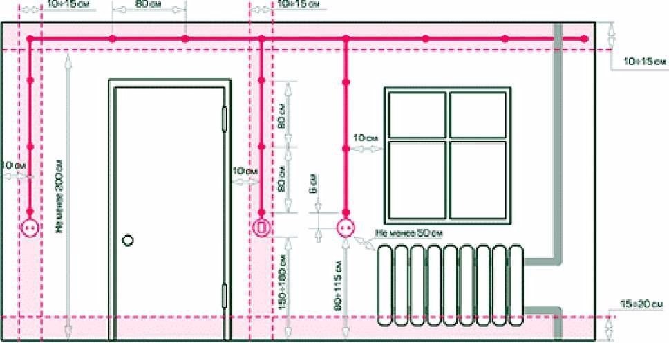
Понятно, что установка розеток и выключателей в помещении в большинстве случае определяет степень комфортности. Не менее важно, чтоб их оптимальное расстояние высоты с точки зрения удобства предполагало нормальную доступную эксплуатацию. При этом не нарушало бы их функциональное предназначение, особенности существующего интерьера в расположении бытовых электроприборов.Стандартность установки розеток и выключателей включает 100 сантиметровое или 50 сантиметровое расстояние прибора от пола.
При этом образцом удобного использования розеток и выключателей назвать не приходиться. Именно по этой причине большинство владельцев собственных квартир стараются заменить старую электропроводку на новую с иной установкой розеток и выключателей. Изменение расстояния, позволяет повысить степень удобства в использовании розеток и выключателей.
Установить розетки и выключатели по евростандарту, идея хорошая. Но вместе с тем она ограничена общими требованиями, которые так успешно сменили советский стандарт установки розеток и выключателей, на новый, так сказать евростандарт.
По евростандарту розетки устанавливаются на высоте 0,3 метра, а установка выключателя должна быть на высоте не ниже и не ниже, чем 0,9 метров от основания пола. Кроме этого, в разных точках нашей страны высота установленного стандарта может незначительно, но все же отличаться. При этом высота установки розеток и выключателе здесь может быть как меньше общего расстояния за евростандартом так и больше.
Но, а если серьезно. То пока, что нет никакого установленного евростандарта в отношении установки высоты розеток и выключателей.
Правила Установки Электроустановок, составленные требования в соответствии с нормами МЭК всего лишь упоминается о возможности установки штепсельных розеток на более удобном расстоянии от пола, что можно прочесть в гл.6.6.30 Правил Установки Электроустановок.
Именно по этой причине во время проведения монтажных работ по установке приборов приходиться руководствоваться удобствами эксплуатации. Но при этом не нарушать разработанные и утвержденные ограничения соответствия высоты у с общепринятыми нормативными документами. То есть нормы, которые связаны не только с расположением розеток и выключателей, но и с техникой безопасность и в отношении установки электропроводки и электроустановочных устройств. (ПУЭ-7 Внутреннее электрооборудование гл.7.1.48-7.1.54).
монтажные высоты выключателей и розетокРекомендации в отношении установки электроустановочных устройств
А вот в отношении советского стандарта, удобства установки розеток и выключателей довольно сомнительно.
Как показала практика, ранее использованный стандарт, не отвечает условиям удобной эксплуатации, чего нельзя сказать о пресловутом евростандарте, который стал для нас более подходящим, чем тот старый советский ГОСТ.
А удобство устанавливаемых розеток и выключателей у входа в комнату должно быть не выше, чем на уровне опущенной руки взрослого пользователя среднего роста. И это непосредственно установленный стандарт расстояния розеток и выключателей у самого входа в комнату. Это нужно для того, чтоб была возможность быстро найти прибор, даже в темноте.
Конечно же, следует отметить, что установленные точки электроустановок вмонтированные согласно стандартам в соответствии с удобством их использования. Только, полностью принимать придерживаться расстояния и высоты в 0,3 метра для розетки и о,9 метра для выключателей, как необходимый и верный стандарт высоты не следует.
Кроме этого, помещение с большой площадью, для управления его освещением, лучше установить розетки и выключатели в разных точках комнаты.
Для этих целей используют проходные выключатели. Понятное дело, что очень проблематично добраться в темноте вглубь комнаты, чтоб, к примеру, найти выключатель и включить свет.
Поэтому самым подходящим вариантов является установка штепсельных розеток с отсутствием отключающимся устройством утечки тока, то есть с устройствами дифавтомами, УЗО, что непосредственно связано в помещениях с санузлами. При этом все электрические устройства, это касается как розеток, так и выключателей для таких бытовых приборов, как стиральные машины, где есть необходимость их выноса наружу, к примеру, на стену в прихожей.
Кроме этого, следует особое внимание уделить тем местам на кухне, где расположено наибольшее число электроприборов. Это имеется в виду, установка розеток, у стола на кухне, где можно и нужно установить пару запасных розеток. В этом случае самым распространенным вариантом, является расстояние в районе 10-15 сантиметров от столешницы кухонного стола.
При этом количество устанавливаемых розеток должно по максимуму обеспечить удобное пользование.Это значит, что проектируя проведения ремонта необходимо учесть удобство эксплуатации, здравый смысл и требования в соответствии с нормативными документами.
На что обратить внимание при выборе розеток
На какой высоте необходимо устанавливать розетки и выключатели в медицинских учреждениях?
Электролаборатория » Вопросы и ответы » На какой высоте необходимо устанавливать розетки и выключатели в медицинских учреждениях?
Для медучреждений существуют свои нормативные документы по электробезопасности. Они более жесткие, чем для обычных помещений и учреждений. Полностью эти требования изложены в ГОСТ Р 50571.28 «Электроустановки зданий. Часть 7-710. Требования к специальным электроустановкам. Электроустановки медицинских помещений».
Ссылка на нормативную базу:
ПУЭ п. 6.6.30. Штепсельные розетки должны устанавливаться:
1. В производственных помещениях, как правило, на высоте 0,8-1 м; при подводе проводов сверху допускается установка на высоте до 1,5 м.
2. В административно-конторских, лабораторных, жилых и других помещениях на высоте, удобной для присоединения к ним электрических приборов, в зависимости от назначения помещений и оформления интерьера, но не выше 1 м. Допускается установка штепсельных розеток в (на) специально приспособленных для этого плинтусах, выполненных из негорючих материалов.
3. В школах и детских учреждениях (в помещениях для пребывания детей) на высоте 1,8 м.
ПУЭ п. 6.6.31. Выключатели для светильников общего освещения должны устанавливаться на высоте от 0,8 до 1,7 м от пола, а в школах, детских яслях и садах в помещениях для пребывания детей — на высоте 1,8 м от пола. Допускается установка выключателей под потолком с управлением при помощи шнура.
ПУЭ п. 7.1.48. Установка штепсельных розеток в ванных комнатах, душевых, мыльных помещениях бань, помещениях, содержащих нагреватели для саун (далее по тексту «саунах»), а также в стиральных помещениях прачечных не допускается, за исключением ванных комнат квартир и номеров гостиниц.
В ванных комнатах квартир и номеров гостиниц допускается установка штепсельных розеток в зоне 3 по ГОСТ Р 50571.11-96, присоединяемых к сети через разделительные трансформаторы или защищенных устройством защитного отключения, реагирующим на дифференциальный ток, не превышающий 30 мА.
Любые выключатели и штепсельные розетки должны находиться на расстоянии не менее 0,6 м от дверного проема душевой кабины.
ПУЭ п. 7.1.50. Минимальное расстояние от выключателей, штепсельных розеток и элементов электроустановок до газопроводов должно быть не менее 0,5 м.
ПУЭ п. 7.1.51. Выключатели рекомендуется устанавливать на стене со стороны дверной ручки на высоте до 1 м, допускается устанавливать их под потолком с управлением при помощи шнура.
В помещениях для пребывания детей в детских учреждениях (садах, яслях, школах и т.п.) выключатели следует устанавливать на высоте 1,8 м от пола.
ПУЭ п. 7.1.54. Выключатели светильников рабочего, безопасности и эвакуационного освещения помещений, предназначенных для пребывания большого количества людей (например, торговых помещений магазинов, столовых, вестибюлей гостиниц и т.п.), должны быть доступны только для обслуживающего персонала.
ГОСТ Р 50571.28 п. 710.55.3. Подключение розеток электропитания в медицинских помещениях группы 2 с медицинской системой IT.
Для каждого места лечения пациентов, например в изголовье коек, должны соблюдаться следующие правила установки розеток электропитания:
— должно быть установлено не менее двух розеток с питанием от отдельных линий либо
— должна быть обеспечена индивидуальная защита от сверхтока для каждой розетки.
Если в части медицинского помещения используются другие системы (TN-S), то розетки, подключенные к медицинской системе IT, должны иметь:
— конструкцию, которая исключала бы их использование в другой системе, или
— четкую, прочную маркировку.
правила и советы, особенности для разных комнат
На чтение 5 мин Просмотров 2.2к. Опубликовано Обновлено
Домовладельцам, которые решили самостоятельно сделать ремонт, важно знать, какое расстояние от проема до выключателя, а также до уровня пола нужно выдержать. Электрики все чаще отдают предпочтение не отечественным, а европейским стандартам, поскольку они характеризуются оптимальным соотношением практичности и удобства.
Расстояние выключателя от дверного проема, высота размещения розеток
В ГОСТах, ПУЭ отсутствуют нормативные акты, которые создают конкретные границы размещения выключателей и розеток от дверного проема. Специалисты утверждают, что оптимальная дистанция между дверью и переключателем – 10-15 см. Если сделать интервал больше, приходится тянуться и нащупывать устройство в темноте, что не очень удобно.
Оптимальная высота розеток над уровнем пола – 20-35 см. Однако в некоторых местах высоту лучше определять в индивидуальном порядке в зависимости от использования бытовой техники.
Если в конкретном месте будет организовано рабочее пространство, потребуется несколько розеток, предназначенных для настольной лампы, роутера, зарядных устройств, монитора и системного блока. Оптимальная высота размещения розеток – 80-90 см. Это значительно упростит процесс использования электрических устройств, поскольку не будет необходимости ударяться об углы стола и лазить под ним, чтобы включить или отключить прибор.
По расстоянию от двери до выключателя в нормативных актах остались преимущественно советские стандарты. В пособии по установке электрооборудования (ПУЭ) приведен следующий список требований:
- Выключатели устанавливают со стороны расположения ручки межкомнатной двери. Высота колеблется в пределах 0,5 — 1 метра.
- К розеткам предъявляется следующее: расстояние от газопровода не менее 0,5 метра.

Розетки можно устанавливать в любом месте комнаты, расстояние от поверхности пола при этом должно быть не менее одного метра. Данная информация актуальна на 2019 год, более детально ознакомиться с требованиями можно в российских нормативных документах.
Европейские стандарты
На евростандарты соотечественники начали обращать внимание относительно недавно. Удаленность переключателей и розеток от пола следующая:
- розетки на высоте – 0,3 м;
- переключатели на высоте – 0,9 м.
Такое расположение имеет как достоинства, так и недостатки. Электрические устройства удобно расположены и не бросаются в глаза. С другой стороны, чтобы дотянуться до устройства, нужно наклониться, часто мебель закрывает доступ к ним.
Положение выключателя по отечественным стандартам
Большинство многоквартирных домов в России было построено еще во времена существования Советского Союза, следовательно, все электроточки размещались по советским стандартам – выключатели на высоте от пола 1,6 м, а розетки – 0,9 м.
Розетки всегда находятся в поле видимости и до них недотягиваются дети. Однако чтобы включить свет, приходится поднимать руку.
Правильное положение выключателя света в спальне
В спальнях рекомендуется монтировать двойные розетки около кровати на расстоянии приблизительно 0,6-0,7 м от уровня пола. Аналогичную высоту составляют прикроватные тумбочки, что в совокупности позволит функционально использовать пространство, подключая ночник, заряжая мобильные устройства и т.д.
Если в комнате планируется устанавливать телевизор, дополнительно устанавливают еще одну розетку для подключения, например, стереосистемы, вай-фай и т.д. Суммарное количество розеток зависит от количества оборудования.
Резервную розетку устанавливают по европейским стандартам для удобного использования пылесоса, утюга, обогревателя и т.д.
На каком расстоянии от двери устанавливаются выключатели в ванной
Если говорить о выключателях и розетках в ванной, прежде всего нужно думать не о функциональности используемой жилплощади, а о безопасности пребывания в ней.
Монтироваться розетки должны с умом, поскольку всегда есть вероятность их подтопления. Оптимальная удаленность от пола – не менее 0,5 метра. Обусловлено это тем, что в ванной не применяются низкорасположенные электрические приборы.
В ПУЭ приведено одно требование к размещению розеток в ванной комнате – интервал с душевой кабиной не менее 0,6 м.
Переключатели в ванных комнатах рекомендуется устанавливать по советским стандартам, т.е. за пределами комнаты, чаще всего в прихожей.
Расстояние от проема до выключателя в кухне
На кухне не обойтись без большого количества электрических приборов и бытовой техники, что ощутимо увеличивает нагрузку на электрическую сеть. Во избежание поломок и возгораний требуется разводку при необходимости заменить новой. Общие рекомендации, обязательные к ознакомлению:
- Для монтажа и подключения вытяжки розетку требуется размещать практически под потолком, на высоте не менее 2 метров.
- Одна из групп электрических приборов предназначена для напольных бытовых приборов, наиболее распространенные среди них — холодильник, духовой шкаф, морозильная камера, возможно, и стиральная машинка.

- На высоте 1,1 м от уровня пола устанавливают силовую группу, предназначенную для нагревательных устройств.
Расстояние выключателя света от поверхности пола и дверных проемов зависит от технических характеристик помещения. Как правило, наиболее практичной высотой является уровень опущенной руки человека.
Полезные советы
Несмотря на существующие стандарты, многие домовладельцы предпочитают делать «как им удобно». Чтобы нестандартные решения не стали причиной нежелательных последствий, стоит ознакомиться с несколькими советами:
- Рекомендуется схематически на поверхности стен изображать розетки и переключатели, это позволит проанализировать удобство, практичность.
- В целях безопасности запрещается устанавливать переключатели недалеко от источников влаги и тепла.
- Еще на этапе ремонтных работ нужно определиться, где будет стоять мебель, в противном случае ею может быть перекрыт доступ к электроточкам.
Можно посоветоваться со своими родственниками и товарищами, возможно, многие из них уже давно сделали ремонт и им есть с чем сравнивать и что посоветовать.
Существует большой ассортимент выключателей разных модификаций, выбрать подходящий не составляет особого труда. Наиболее распространенные виды: клавишные, сенсорные, оснащенные датчиком движения, акустические, а также поворотные. Производят устройства разных форм, текстур и цветов, поэтому их можно не скрывать, а, напротив, располагать на видном месте как дополнение к интерьеру.
Идеальная высота выключателя света для любой комнаты, решено!
Фото: istockphoto.com
Вопрос: В настоящее время на нашей закрытой веранде проходят некоторые обновления, включая установку верхнего освещения и добавление небольшого кухонного гарнитура на открытом воздухе. Следует ли помнить о стандартной высоте выключателя света?
A: Не существует жесткого правила для правильной высоты выключателя света; скорее, то, насколько высоко вы должны установить свою собственную, будет зависеть от ваших местных постановлений по электротехнике и федеральных законов, регулирующих доступность.
Кроме того, вы можете внести изменения в зависимости от его расположения по отношению к другим приборам или переключателям в комнате, а также от роста тех, кто будет использовать переключатель чаще всего.
Национальный электрический кодекс (NEC) не устанавливает конкретную минимальную высоту выключателя света, но ваш местный электротехнический кодекс может предписывать собственный стандарт — вы обычно можете найти электрический код на веб-сайте вашего города.Имейте в виду, что не для каждого города требуется определенная минимальная высота.
Идеальная высота выключателя света — 48 дюймов от пола. Строители обычно используют этот стандарт, поскольку эта высота может быть достигнута как из положения стоя, так и из положения сидя. Кроме того, он соответствует диапазонам высоты выключателя, установленным Законом об американцах с ограниченными возможностями (ADA) и Законом о справедливом жилищном обеспечении (FHA).
Даже если ваш местный электротехнический кодекс не требует определенной минимальной высоты, эти акты предлагают рекомендации при установке выключателя света: согласно рекомендациям ADA, настенные элементы управления и розетки, к которым можно дотянуться из переднего положения, должны быть не менее 15 дюймов. и максимум 48 дюймов над землей, чтобы до него можно было легко дотянуться из сидячего положения.
Теперь правила доступности ADA применяются к общественным зданиям и очень редко к частным домам, а рекомендации FHA по доступности применяются к крытым многоквартирным домам, а не к отдельным домам на одну семью. Тем не менее, оставаться в пределах их диапазона высоты выключателя света независимо от вашего типа жилища — это внимательное соображение, которое обеспечивает более легкий доступ при старении на месте или восстановлении после травмы, если член семьи когда-либо будет проводить время в инвалидном кресле, не говоря уже о том, чтобы обеспечить доступность вашей недвижимости для будущих владельцев или арендаторов.
Фото: istockphoto.com
Отрегулируйте высоту переключателей, установленных над столешницей.При установке выключателя света над столешницей, например, на кухне в помещении или на открытом воздухе, в художественной студии или мастерской, уменьшите стандартную высоту настенного монтажа до 40 дюймов. Эта более низкая высота выключателя света позволит вам избежать помех для более высоких препятствий на стене, таких как фартуки или шкафы, при этом он будет зависать на четыре дюйма над верхней частью стандартной 36-дюймовой стойки.
Предназначен для размещения детей или взрослых меньшего роста.48-дюймовый стандарт подходит для всех в возрасте от 12 лет. Для установки выключателя света в комнатах, используемых в основном для детей (например, в новой игровой комнате), ADA рекомендует различные диапазоны минимальной высоты розетки и выключателя света:
- От 20 до 30 дюймов над полом для детей в возрасте от 3 до 4
- От 18 до 18 лет.
40 дюймов над полом для детей от 5 до 8 - От 16 до 44 дюймов над полом для детей от 9 до 12
Аналогичным образом, если некоторые взрослые в вашей семье имеют более миниатюрный рост, что мешает им легко добраться до выключателя света расположенные на высоте 48 дюймов над землей, подумайте о том, чтобы уменьшить высоту до более низкой в пределах допустимого ADA диапазона, до которого они могут более комфортно добраться.
Некоторые рабочие места лучше оставить профессионалам
Получите бесплатные оценки от ближайших к вам лицензированных электриков.
+ При резке гипсокартона помните, что желаемая высота выключателя света будет там, где вы расположите центральную линию выключателя и пластины. Диапазоны высоты переключателя света ADA относятся к рекомендуемому расстоянию от пола до работающей части переключателя света, а не к верхней или нижней части крышки — обычно это центральная линия для стандартных переключателей света.
При установке вы измеряете 48 дюймов над землей из любой точки на полу и отмечаете это место на стене. Затем, прежде чем вырезать отверстие для розетки в существующем гипсокартоне, поместите старую коробку (также известную как коробка для ремоделирования) назад на гипсокартон так, чтобы центральная линия коробки совпадала с отметкой, которую вы сделали на стене. Обведите периметр старой коробки, затем удалите шаблон. Отсюда подключите пилу для гипсокартона, чтобы вырезать очерченную область в гипсокартоне.
После того, как вы убедитесь, что питание отключено от провода, который будет подводиться к старой рабочей коробке, вставьте старую рабочую коробку в отверстие в гипсокартоне так, чтобы провод питания проходил через отверстие в гипсокартоне и проводился через старая рабочая коробка с оголенным проводом не менее шести-семи дюймов (вы можете использовать инструмент для зачистки проводов, чтобы зачистить провод).
Прикрепите старую рабочую коробку к гипсокартону с помощью шурупов, проволоки и установите новый выключатель света в старую рабочую коробку, а затем прикрепите его к стене шурупами.Подключите питание к проводу питания и включите и выключите свет, чтобы проверить свою работу.
Некоторые рабочие места лучше оставить профессионалам
Получите бесплатные оценки от ближайших к вам лицензированных электриков.
+A Руководство по размещению настенных электрических выключателей
Многие аспекты установки электропроводки имеют очень конкретные правила, изложенные в Национальных электротехнических правилах (NEC) и местных строительных нормах. Однако NEC ничего не говорит о точной высоте настенных электрических выключателей.Размещение настенных коробок для выключателей остается на усмотрение домовладельца и застройщика. Тем не менее, строители и электрики следуют некоторым стандартным строительным стандартам, чтобы гарантировать, что переключатели будут расположены на удобной для большинства людей высоте.
Стандартные положения переключателя могут отличаться в зависимости от конкретных обстоятельств, например, в доме, где живут люди в инвалидных колясках или с физическими ограничениями.
Настенные переключатели в стандартной конструкции
Как правило, настенные выключатели для осветительных приборов в стандартной жилой застройке устанавливаются таким образом, чтобы настенные выключатели находились где-то на высоте от 48 до 52 дюймов над полом.У этого есть несколько преимуществ. Во-первых, он помещает переключатель на удобную высоту для большинства людей в положении стоя. Во-вторых, это упрощает монтаж стеновой панели при строительстве дома. Стандартные листы стеновых панелей шириной 4 фута устанавливаются горизонтально в большинстве новых домов, и если распределительные коробки установлены на расстоянии около 48 дюймов от пола, это позволяет легко измерить, маркировать и разрезать панели стеновых панелей по размеру.
Распределительную коробку можно установить так, чтобы ее верх или низ находились на отметке 48 дюймов, или он мог быть отцентрирован на отметке.
Плотники, устанавливающие стеновые панели, могут легко вырезать отверстия в панелях, чтобы они поместились вокруг распределительной коробки. Размещение нижней части распределительной коробки на высоте 48 дюймов от пола означает, что верх коробки упадет на 52 дюйма над полом. Это позволяет установщику гипсокартона вырезать отверстие распределительной коробки из верхнего листа стеновой панели, при этом нижний лист должен находиться заподлицо с дном распределительной коробки.
В приложениях по ремоделированию вы можете измерить распределительные коробки в готовых частях дома и убедиться, что новые переключатели в реконструированных областях соответствуют таковым в остальной части дома.
Особые ситуации
Стандартная высота от 48 до 52 дюймов может варьироваться для людей, которые считают другой рост более комфортным, а для специальных применений применяются другие стандарты.
Жители с ограниченными физическими возможностями
Если один из членов вашей семьи значительно ниже среднего роста или пользуется инвалидной коляской, вы можете установить переключатели ниже, чтобы им было удобнее.
Хотя стандарты ADA (американцы с ограниченными возможностями) не рекомендуют конкретную высоту настенных переключателей, многие строители, знакомые с этими ситуациями, рекомендуют устанавливать настенные переключатели на высоте 36 дюймов от пола, чтобы они были легко доступны для людей в инвалидных колясках.
Выключатели над столешницами
Расположение переключателей над столешницей зависит от возраста дома и типа кухонных шкафов. Вообще говоря, настенные выключатели должны быть примерно на 4 дюйма над столешницей. Поскольку стандартная высота большинства базовых шкафов со столешницей составляет около 36 дюймов, это означает, что нижняя часть распределительной коробки должна опускаться как минимум на 40 дюймов над полом. Это позволяет выключателю очищать стандартную столешницу.
Точное положение настенного переключателя над столешницей может варьироваться в зависимости от конкретной ситуации, например, места падения верхних шкафов. Некоторые строители пытаются разделить разницу между верхом столешницы и низом верхнего шкафа при установке настенных выключателей.
Выключатели печи
Выключатели, используемые для отключения печи, также могут различаться по высоте. Установка этой высоты — это вопрос суждения, и она зависит от компоновки печи.Очень часто этот переключатель располагается немного выше стандартных от 40 до 52 дюймов.
Выключатели для утилизации мусора
Когда переключатель для мусороуборочного устройства находится над столешницей, следуйте тем же инструкциям, что и для других переключателей на столешнице. Если переключатель расположен под раковиной, установите его как можно выше, чтобы минимизировать наклон. В этой ситуации вы можете добавить переключатель, который контролирует электропроводку посудомоечной машины, так как это дает вам удобную точку отключения, которая упрощает любые будущие работы по обслуживанию посудомоечной машины.
Гидромассажные ванны или гидромассажные ванны
Еще один специальный переключатель, который следует учитывать, — это переключатель таймера, который может быть подключен к вашей гидромассажной ванне или гидромассажной ванне. NEC предъявляет особые требования к расположению переключателя — он должен находиться на расстоянии не менее 5 футов от ванны. Это гарантирует, что вы не сможете дотянуться до переключателя, стоя или сидя в воде — мера безопасности для предотвращения потенциально смертельных ударов. Кроме того, вы можете установить этот переключатель выше стандартных 48–52 дюймов, чтобы маленькие дети не могли управлять ванной.
На какой высоте установить выключатель света?
Несколько раз нас спрашивали, на какой высоте установить выключатель света. О размещении розеток мы рассказали в другой статье. На этот раз мы хотели определить расположение переключателей при подключении электропроводки в комнате. Хотя NEC не указывает высоту переключателей, большинство из них следуют стандартной процедуре. Типичное размещение помещает их на 48 дюймов по центру. Исключения существуют для домов, где доступность для инвалидных колясок является серьезной проблемой. В этом случае вы можете разместить их на высоте около 40 дюймов от пола.
Начните с кода NEC
В соответствии с NEC 210.70, по крайней мере, одна настенная розетка с выключателем освещения (включая потолочные вентиляторы) должна быть установлена в каждой жилой комнате и ванной комнате жилого дома. В помещениях, отличных от кухонь и ванных комнат, вместо розетки освещения можно использовать розетку, управляемую настенным выключателем. Чтобы перекрыть толпу элитных людей, розетки можно контролировать с помощью датчиков присутствия, оснащенных ручным управлением. Это позволяет датчику также работать как настенный выключатель.
Примечание редактора: У нас был клиент, который хотел, чтобы все его переключатели были установлены на высоте 30 дюймов от пола. Сначала мы думали, что это какое-то жилье для члена семьи с ограниченными возможностями. После дальнейших запросов мы узнали больше. Это просто позволяло ему включать свет в каждой комнате, не поднимая руки! Хотя в этом нет ничего плохого, мы не рекомендуем занижать потенциальную стоимость вашего дома при перепродаже из-за модного решения, основанного на лени или стремлении отличаться! Следуйте подразумеваемым стандартам.
Где разместить настенные переключатели
Код NEC содержит приблизительные требования к размещению настенных коммутируемых осветительных розеток. Однако в нем не указано, на какой высоте установить выключатель света.
Здесь также не указывается фактическое местоположение переключателя (по нашему мнению, да и не должно). Посмотрите планы или проконсультируйтесь с архитектором или владельцем, чтобы разобраться с особенно сложными входами. По большей части размещение переключателя будет соответствовать правилам здравого смысла.Не ставьте выключатель за дверью. Не забудьте также отметить длину любых коротких стен. Это избавит вас от недостатка пространства между шпильками для крепления коробки.
Соблюдайте минимумы.
Кодекстакже предписывает установку по крайней мере одной настенной розетки с выключателем освещения в коридорах, на лестницах, в пристроенных гаражах и в любых отдельно стоящих гаражах с электричеством. Кроме того, по крайней мере одна настенная осветительная розетка, управляемая выключателем, должна обеспечивать освещение с внешней стороны входов или выходов на открытом воздухе с доступом на уровне класса.
Надеюсь, это дало вам представление о том, как высоко установить выключатель света. Планы зданий могут иметь размеры, которые указывают измерения по центру, сверху или даже снизу коробки. Просто дважды проверьте свою работу, чтобы убедиться, что все это имеет смысл и что у вас есть достаточная эргономика для эффективного включения всех переключателей.
Как определить высоту выключателей света для вашего дома?
posted on
Ведение дома — это искусство, которым вы будете заняты с того момента, как войдете в свой новый дом.При прокладке электропроводки нужно учитывать высоту выключателей света.
В этом руководстве вы узнаете о правильной высоте выключателей света для вашего дома. Уверяем вас: не бывает правильной или неправильной высоты. Просто есть высота, подходящая для ваших нужд.
Есть ли об этом постановление правительства?
Прежде всего, вам необходимо проверить, есть ли в вашей стране постановление правительства о высоте выключателя света.В США в Национальном электротехническом кодексе не указана конкретная высота переключателей света.
Если вы живете в другой стране, узнайте местные электротехнические нормы и правила своего города. Обычно это доступно на сайте города. Как правило, такого регулирования нет, но всегда лучше сначала подтвердить.
Какова средняя высота переключателя света?
В обычном доме выключатели света находятся на стандартной высоте над землей. Это сделано для того, чтобы каждый мог легко дотянуться до переключателя, не сгибаясь и не вставая на цыпочки.
Обычно высота выключателя от пола составляет от 50 до 52 дюймов. В обычных конструкциях вы заметите, что это стандартная высота, потому что она подходит обычным людям.
При установке нового выключателя света в вашем доме вы можете измерить эту высоту от пола до верхней части коробки выключателя света или до центра. Просто убедитесь, что высота каждого переключателя в вашем доме одинакова. В проектах реконструкции сохраняйте высоту переключателя света такой же, как и в других комнатах дома.Вы также можете подумать о том, чтобы топнуть потолок при ремонте вашего дома.
Преимущества стандартной высоты выключателя света
Вы можете спросить, почему стандартная высота находится в пределах этого диапазона. Это потому, что в этом есть определенные преимущества.
Идеальность
Прежде всего, это идеальная высота для большинства людей. На этой высоте большинство людей с нормальным ростом могут включать свет стоя.
Простота установкиВо-вторых, такая высота делает установку намного более доступной.В большинстве домов размер стеновых панелей составляет 4 фута, а листы стеновых панелей размещаются горизонтально. Выключатель света от 48 до 50 дюймов легко измерить, чтобы он мог поместиться в стеновой панели.
Причины изменения стандартной высоты переключателя света
В некоторых исключительных случаях вам может потребоваться изменить высоту выключателей света в вашем доме. Если вы попали в одну из этих ситуаций, вам необходимо соответственно определить рост.
Физические ограниченияЕсли вы или кто-либо в вашей семье физически ограничен , вам придется изменить стандартную высоту.Например, если один из членов вашей семьи находится в инвалидном кресле, вам нужно держать выключатели света немного ниже.
Таким образом людям будет легче включать выключатели света. Точно так же, если кто-то в вашей семье невысокого роста, вы можете поддерживать высоту выключателя до 36 дюймов.
Регулировка для детейЕсли у вас в доме есть дети, вам придется уменьшить для них высоту выключателей света. В качестве альтернативы вы можете держать выключатели света ниже в детских спальнях в игровой комнате.
- Выключатель до 30 дюймов подходит для детей от 4 до 5 лет.
- Переключатель до 40 дюймов подходит для детей от 6 до 8 лет.
- Переключатель до 45 дюймов подходит для детей от 9 до 11 лет.
Вы можете отрегулировать эту высоту в зависимости от роста ваших детей, чтобы им было удобно дотянуться до переключателей. Помимо установки выключателей света, вы также можете самостоятельно укладывать напольное покрытие в детской комнате.
Настольные переключателиНекоторые выключатели находятся над столешницей, и они, очевидно, будут выше. В этом случае высота измеряется от столешницы, а не от пола.
Отмерьте до 4 дюймов от столешницы и установите здесь выключатель света. Обычно кухонные столешницы находятся на высоте от 36 до 38 дюймов от пола, поэтому дополнительные 4 дюйма составляют общую высоту около 40 дюймов.
Это подходит для большинства людей.Поскольку ваши дети не собираются часто заходить на кухню, эта высота выключателя света является лучшей.
Установка выключателя света
После того, как вы определили правильную высоту переключателя в соответствии с вашими личными потребностями, вы можете приступить к установке светильника.
Если вы не являетесь большим энтузиастом DIY, вы можете попросить электрика сделать эту работу за вас. Он сделает отметку на вашей стене размером около 48 дюймов от пола. Затем он прорежет отверстие для розетки.
Заключение
Очень важно выбрать правильную высоту выключателей света. В противном случае вы можете столкнуться с неудобствами при выполнении важных функций, таких как включение или выключение света.
Идеальная высота для выключателей света составляет от 48 до 52 дюймов, но вы можете изменить ее по своему усмотрению. Надеюсь, это руководство дало бы вам представление о том, как определить правильную высоту для выключателей в вашем доме.
Мета Описание
Узнайте, как установить выключатели в доме на нужной высоте, чтобы каждый мог добраться до них удобно и эффективно.
Как далеко должен быть выключатель света от двери?
Вы когда-нибудь обращали внимание на то, где в вашем доме находятся выключатели света? Взгляните сейчас. Вы когда-нибудь задумывались, почему они размещены именно там, где они есть?
Я уже упоминал о своем увлечении всем, что связано с освещением, и то же самое с выключателями. Что действительно интересно, во всех моих исследованиях я узнал, какие законы и правила диктуют, где можно разместить выключатель света.
Не существует национальных законов о том, как далеко выключатель света должен находиться от дверной коробки.Рекомендуется устанавливать переключатель на расстоянии не менее 8 дюймов от рамы, чтобы оставить место для панели переключателя.
Интересно, правда? Хорошо читайте, потому что в этой статье я расскажу вам:
- Правила, касающиеся выключателей света
- Стандартное расстояние для выключателей от двери
- Стандартная высота выключателя света
Существуют ли какие-либо требования к расположению коммутаторов?
Строительные нормы и правила различаются в зависимости от вашего местоположения, но нет федеральных законов, регулирующих размещение выключателей света в домашних или коммерческих условиях в Соединенных Штатах.Вместо этого существует свод стандартов, которым должны следовать электрики.
Этот код — Национальный электротехнический кодекс (NEC). Его публикует не федеральное агентство, а частная торговая группа, Национальная ассоциация противопожарной защиты.
Хотя их название предполагает, что они все о пожарной безопасности, кодекс охватывает все, включая доступность.
Также важно отметить, что только потому, что стандарты, изложенные в Национальном электротехническом кодексе, не являются федеральным законом, это не означает, что вы не несете ответственности, если вы устанавливаете такое оборудование, как выключатель света, небрежным образом. .
Если ваша работа каким-либо образом опасна или причиняет ненужный ущерб собственности, то вам могут предъявить иск, если вы не придерживались NEC. Так что это стоит того.
Также прочтите: Нужно ли заземлять выключатели света?
Вы можете получить свободный доступ к коду на веб-сайте NFPA, но для этого вам нужно будет создать учетную запись.
И хотя кодекс является национальным стандартом, это не означает, что нет требований местной юрисдикции, которым вы должны следовать.
В некоторых штатах, например, в Неваде, есть законы, согласно которым выключатель света должен находиться на расстоянии не более шести футов от дверной коробки.
Урок заключается в том, чтобы всегда проверять законы своего штата или страны при выполнении любых электромонтажных работ!
Какое стандартное расстояние переключателя от двери?
Нет установленных стандартов расстояния выключателя света от двери. Национальный электротехнический кодекс не включает эту информацию в свои правила. Поиск не показывает согласованного стандарта.
Я рекомендовал оставлять зазор не менее 8 дюймов от дверной коробки.
Причина в том, что в замке двери может быть несколько стоек в стене — на 8 дюймов приходится две стойки, поэтому панель переключателя не будет мешать конструкции дверной коробки.
Что касается максимального расстояния, рекомендуется руководствоваться здравым смыслом и не оставлять переключатель слишком далеко.
Не стоит возиться в темноте, пытаясь осветить свою комнату, если вы не можете найти выключатель.Вы, конечно же, не захотите заходить в комнату, где можете споткнуться о невидимые препятствия.
Еще одна вещь, которую следует учитывать, — убедиться, что вы устанавливаете любые выключатели света со стороны замка двери, а не со стороны петель.
Просто потому, что вам не нужно входить в комнату и закрывать дверь, чтобы получить доступ к выключателю — это будет регулярно разочаровывать.
Конечно, это можно обойти, установив интеллектуальное освещение.
Насколько высоко должен быть выключатель на стене?
Как и в случае с расстоянием между выключателем света от стены, ничто в Национальном электротехническом кодексе не определяет, насколько высоко должен быть выключатель света на стене.
Однако есть требование закона — оно продиктовано Американской ассоциацией инвалидов. В нем говорится, что все выключатели света должны быть размещены на расстоянии 15-48 дюймов от пола, чтобы инвалиды-колясочники могли добраться до них.
Имея это в виду, строители, как правило, работают на стандартной высоте, помещая нижнюю часть панели переключателей на 48 дюймов над полом.
Использование этого единообразного измерения обеспечивает легкий доступ к переключателю для любого человека, стоящего или сидящего, независимо от его роста.
Однако, высота 48 дюймов не является рекомендацией ADA.
Они указывают на то, что к выключателю на высоте 48 дюймов не могут легко добраться люди ростом менее четырех футов или любой человек в инвалидной коляске, страдающий какой-либо формой паралича.
Они действительно рекомендуют высоту 40 дюймов.
Это все равно будет удобно для любого, кто не прикован к инвалидной коляске, поскольку средний рост американца составляет от 64 до 69 дюймов.Если вы меняете проводку в доме и хотите, чтобы выключатели света были максимально доступны, это будет лучшим вариантом.
Еще один вариант, о котором я должен упомянуть, — это когда выключатели света размещаются над столешницей на вашей кухне или в любой другой комнате, где у вас есть столешница.
Если вы устанавливаете выключатель света над столешницей, по стандарту он должен располагаться на четыре дюйма над столешницей.
Поскольку стандартная высота столешницы составляет 36 дюймов, переключатели размещаются на рекомендуемой высоте 40 дюймов.
Опять же, это может варьироваться — если у вас есть настенные шкафы, вы можете разместить переключатель на полпути между столешницей и нижней частью шкафа, так как это будет выглядеть лучше. Рассмотрите всю конструкцию комнаты, но убедитесь, что переключатели не превышают 48 дюймов.
Заключительные слова
Когда дело доходит до установки выключателей света, соблюдать правила относительно просто.
Просто убедитесь, что выключатели света находятся на достаточном расстоянии от дверной коробки, чтобы они не мешали конструкции, и что они находятся на подходящей высоте для всех пользователей.
И тогда вы можете начать думать, какие выключатели света вы хотите установить.
Вы когда-нибудь сталкивались с необычной установкой выключателей света? Или возникли проблемы с ремонтом вашего дома при попытке переместить выключатель света?
Дайте мне знать в комментариях.
Высота для установки розеток и переключателей
Как установить выключатели и розетки света: насколько высоко должны быть розетки и выключатели от пола, реконструкция и модернизация домашней электропроводки. |
Руководство по установке коробок для розеток и выключателей
[ad # block] Электрический вопрос: Насколько высоко должны быть розетки и выключатели от пола?
- Я прокладываю в доме электропроводку для гостиной и спальни.
- Как далеко выключатели света находятся от пола?
- То же самое для дюбелей, как далеко они должны быть?
Этот вопрос по электропроводке поступил от: Дебби, домовладельца из Коффман-Коув, Аляска.
Ответ Дэйва:
Спасибо за вопрос по электропроводке, Дебби.
Как установить выключатели и розетки освещения
Применение: Монтаж домашней электропроводки.
Уровень квалификации: от среднего до продвинутого — лучше всего выполняется электриком.
Необходимые инструменты: сумка для электромонтажных работ с ручным инструментом для грубого монтажа проводки, электрическая дрель и сверла, удлинители и лестница, если необходимо.
Безопасность: При выполнении электромонтажных работ необходимо принять все меры личной безопасности.Расчетное время: зависит от масштабов проекта, масштабов проекта и доступного доступа к области проекта.
Меры предосторожности: Любая существующая проводка в непосредственной близости, которая может мешать установке, должна быть идентифицирована, отключена и помечена.
Уведомление: Установка дополнительной электропроводки или модернизация существующих электрических цепей и электропроводки всегда должны выполняться в соответствии с местными и национальными электротехническими нормами, с разрешением и проверяться.
Установка электрических коробок для выключателей света и настенных розеток
- Установка электрических коробок для выключателей света
- Средняя высота выключателей освещения составляет 46 дюймов от пола до центра распределительной коробки.
- Это также верно для настенных розеток на кухне и в ванной, где выключатели и розетки находятся на одной высоте.
- Установка электрических коробок на розетки
- Средняя высота розеток составляет 12 дюймов от пола до центра выпускной коробки.
- Реконструкция и модернизация домашней электропроводки
- При обновлении домашней электропроводки или реконструкции фактическую высоту можно отрегулировать таким образом, чтобы высота переключателей и розеток соответствовала высоте других существующих розеток и переключателей.
- Местные и национальные электрические нормы и правила должны применяться в соответствии с требованиями проекта.
- ADA, Американский закон об инвалидах: кодексы и стандарты инвалидности
- Обеспечение доступа к выключателям и розеткам света:
- Если коды ADA и Disability будут применяться к проекту, конкретные местоположения и отметки будут описаны на наборе планов или наборе чертежей.
Подробнее об установке выключателей и розеток света
Электропроводка розетки
Домашняя электрическая проводка включает розетки на 110 вольт и розетки и розетки на 220 вольт, которые являются обычным местом в каждом доме.Посмотрите, как сделана разводка электрических розеток для дома.
Как подключить коммутатор
Электрические схемы
Полностью объясненные электрические схемы выключателя света. Подробные схемы электропроводки и изображения помогут в реализации ваших домашних проектов по электрике.
Освещение для дома Коды электротехнического освещения Коды электропроводки дома
Электротехнический кодекс Справочник по установке электрических коробок и электропроводки.
| ||||||||
Будьте осторожны и безопасны — никогда не работайте в цепях под напряжением!
Проконсультируйтесь в местном строительном департаменте по поводу разрешений и проверок для всех проектов электропроводки.
Позиционирующие переключатели и розетки на стене
Если ваш проект по благоустройству дома предусматривает добавление пристройки, отделку подвала или выполнение любой капитальной реконструкции, которая включает добавление электрических розеток и / или переключателей, вы должны учитывать их высоту и расположение относительно других структурное оформление территории.
Эта информация носит общий характер. В юрисдикции могут быть определенные строительные нормы и правила, касающиеся размещения электрических выключателей и розеток. Перед тем, как продолжить, всегда уточняйте в местном строительном отделе.
Рисунок 1 — Расположение электрических выключателей и розеток
На момент написания этой страницы Национальный электротехнический кодекс США не устанавливал минимальную или максимальную высоту для электрических переключателей или розеток в комнате.
Примечание: Если вы реконструируете или строите дом, чтобы обеспечить легкий доступ для людей в инвалидных колясках или мобильных скутерах, вам следует прочитать эти статьи .
Если вы строите пристройку или завершаете подвал или чердак, вам следует измерить размещение электрических выключателей и розеток (розеток) в жилых помещениях вашего дома. Снимите крышку, чтобы произвести измерение. Устанавливая электрические выключатели и розетки (розетки) на той же высоте, что и остальная часть дома, вы создаете единообразие и единообразие, чтобы добавление или отделка выглядела так, как будто она принадлежит.
Большинство электрических выключателей устанавливаются на высоте от 44 до 46 дюймов от нижней части электрического шкафа до верхней части готового пола. Электрические переключатели должны быть расположены так, чтобы обеспечивать:
- Легкий доступ для поиска и работы. Внизу или наверху лестницы электрический выключатель должен находиться в таком положении, чтобы тот, кто не знаком с комнатой, мог найти выключатель.
Это может показаться странным, но люди — существа привычки.В лестничной клетке, у которой есть стены с обеих сторон, мы достигнем правого верха или низа лестничной клетки.
Когда мы войдем в темную комнату, мы автоматически найдем электрический выключатель. Большинство людей дойдут до внутренней стены справа, если двери нет и есть дверь с противоположной стороны от дверного проема с внутренней стороны.
Люди не ожидают, что электрические выключатели будут на внешней стене комнаты.
- Не помещайте более 4 электрических выключателей в одну электрическую коробку.Это не правило кода, а правило здравого смысла. Более 4 переключателей, и вы никогда не вспомните, какой переключатель какой электрической схемой управляет.
Во-вторых, может быть сложно и дорого найти панели переключателей для более чем 4 переключателей вместе.
При обкатке электрооборудования учитывайте ширину дверных накладок. Расстояние от внешнего края обшивки до электрического выключателя должно быть не менее 2 дюймов. Обычно конструкция стойки для дверной коробки не позволяет вам разместить электрическую коробку для переключателя рядом с краем облицовки (как минимум, она должна быть толщиной в две стойки 2 × 4).Однако, если вы посмотрите на изображение выше (Рисунок 1), вы заметите, что используется исключительно широкая дверная обшивка.
Электрические розетки (розетки) следует размещать на расстоянии от 10 до 14 дюймов от верха пола до низа распределительной коробки.
Национальный электротехнический кодекс определяет, что у вас должна быть электрическая розетка (розетка) в пределах 6 футов от угла любой стены и не более 12 футов разделяющих розеток на той же стене ( 6/12, правило розеток ).Это, конечно, минимальное требование для жилой площади
. Вы должны спланировать электрические розетки (розетки) в зависимости от того, какие приборы и устройства вы будете использовать в комнате, и их расположение.
Например, если вы планируете разместить медиацентр в углу комнаты, вам может потребоваться несколько дуплексных электрических розеток (розеток), обслуживающих эту зону.


40 дюймов над полом для детей от 5 до 8